Description
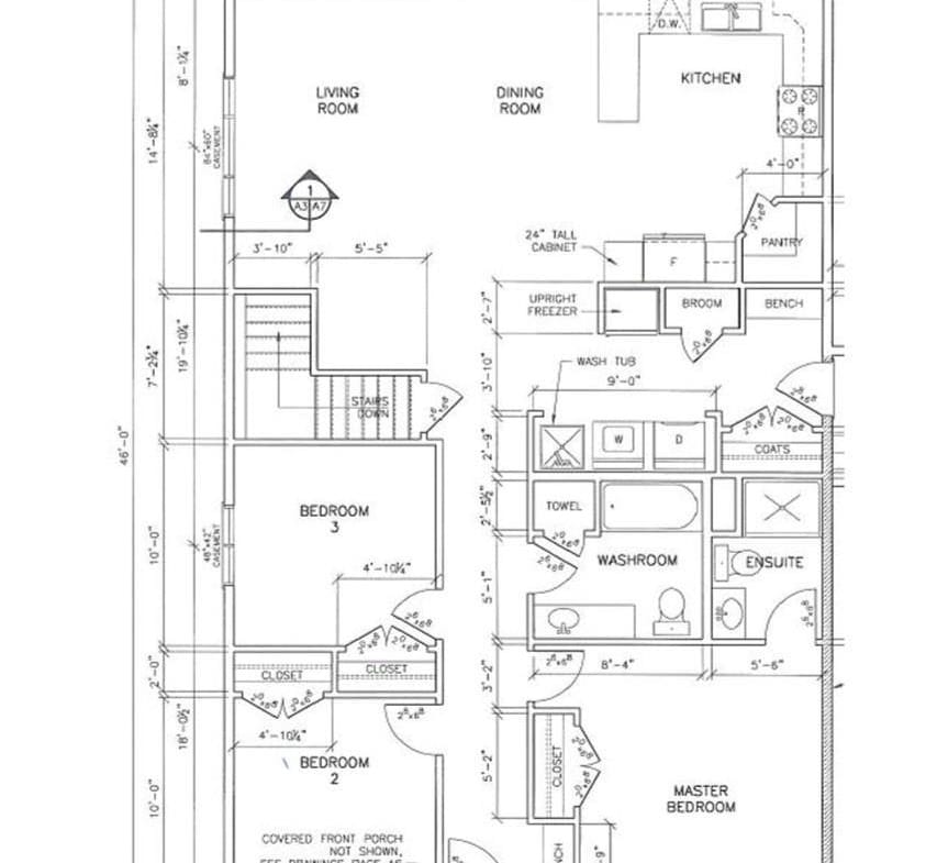
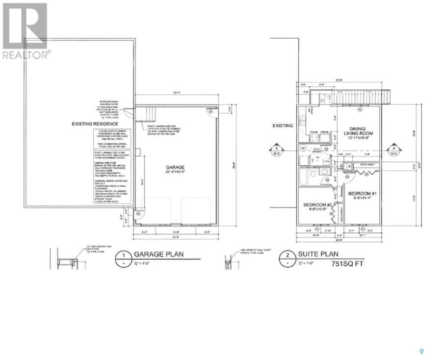
You will find this one of a kind income earning home in Yorkton’s newest neighbourhood… RIVERSIDE MEADOWS!! The main residence has over 2,600 sq. ft. of living space that will suit a growing family. The main floor has open kitchen/dining/living space with garden doors to the fenced back yard. The master bedroom with en-suite, 2 more bedrooms,4 piece bathroom and mud/laundry room complete the main floor. The basement has large windows and consists of another 2 spacious bedrooms, large rec room, exercise room, 3 storage spaces and 5 piece bathroom. The oversized attached garage is heated with access to the front and back yard. The backyard has a large east facing covered deck to get the morning sun and afternoon shade, garden space, 2 playhouses, large shed and many trees including three apple. The separate apartment/living space above the garage is completely separated from the house with private rear entrance. It has 2 bedrooms, 1 bathroom with tub, utility room and large living/dining/kitchen space. THE BONUS! The apartment earns $1250 per month to help pay down your mortgage faster! Tenant pays their own power(electric heat). There are 2 sets of appliances included. Move in to this one of a kind home and be able to pay half your mortgage without lifting a finger! (28499690)
Address
Open on Google Maps- Address: 48 Whitewater Place
- City/Location: Yorkton
- Province: Saskatchewan
- Zip/Postal Code: S3N0X1
- Area/Neighbourhood: Riverside Meadows
- Country: Canada
Details
Updated on April 22, 2026 at 6:08 pm- Property MLS® ID MLS®SK009957
- Price $568,900
- Property Size 2131
- Land Area 8084
- Bedrooms 7
- Rooms 20
- Bathrooms 4
- Year Built 2010
- Property Type House (detached), RESIDENTIAL
- Property Status FOR SALE
- House Style/Structure Single-Detached House, Bungalow
- Basement Finished, Sump Pump / Sump Basin
- Garage Type / Parking Spots Attached, Parking Spots: 5, Garage Door Remote/Opener, RV Access, Heated Garage
- Ownership Type Freehold
- Annual Property Taxes $5,163
Mortgage Calculator
- Down Payment
- Loan Amount
- Monthly Mortgage Payment
- Property Tax
- Home Insurance
- PMI
- Monthly HOA Fees





















